Все строящиеся дома и готовые новостройки
Москвы и Московской области
Москва и МО

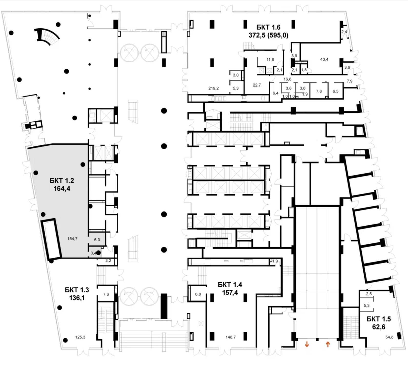
Помещение 521 м2, 1/24 этаж,
Шеногина, д. 2

4 815 000 руб./мес.

  • Москва г, Шеногина ул, д. 2

Основные характеристики

  • Этаж 1 этаж 24-этажного дома
  • Общая площадь 520.5 м²
  • Назначение помещения помещение свободного назначения

Дополнительная информация

  • Источник напрямую
  • Ремонт да
  • Высота потолков, м 3.8

Инфраструктура

Описание

Помещения свободного назначения от 62,6 м2 в бизнес-центре Sydney City (класс ""А"") — премиум-локация на Шелепихинской набережной Ищете стильное, современное пространство под магазин, шоурум, салон или офис? В Sydney City — новом бизнес-центре класса «А» в сердце Большого Сити — открылся набор площадей свободного назначения с панорамным остеклением, высокими потолками и гибкими условиями аренды. Адрес: ул. Шеногина, земельный участок 2/11 Арендные каникулы — есть! Состояние: без отделки (shell&core) — создайте пространство под свой бренд Высота потолков: от 3,8 до 4,65 м Панорамные витрины в пол 1 или 2 отдельных входа Инженерия БЦ: Энерговооруженность — 100 Вт/м2 Воздухообмен — 60 м/ч Система кондиционирования — чиллер/фанкойл Современные системы пожаротушения, оповещения и безопасности Автоматизация и диспетчеризация всех инженерных систем Шаг колонн: 8,4 8,4 м 5 лифтовых групп (в том числе 17 грузопассажирских лифтов) Просторная входная группа Транспортная доступность: Сейчас: 15 минут пешком до метро и МЦК «Шелепиха» С 2026 года: новая станция «Звенигородская» — всего 1 минута пешком! Инфраструктура: 24-этажный бизнес-центр находится в центре флагманского проекта премиум-класса от ГК ФСК - Sydney City. Первый жилой квартал в концепции well being в Москве. На территории в 19,3 га ведется строительство 23 корпусов, переменной этажности 8-44 этажей. Квартал обладает развитой собственной социальной и коммерческой инфраструктурой, начиная от престижной школы и д/с и заканчивая фудхоллом и развлекательным центром. Активный пешеходный и деловой трафик. Условия аренды: Эксплуатационные и коммунальные платежи оплачиваются отдельно по факту (счета от УК). Гибкие условия. Прямой договор. Звоните, чтобы назначить просмотр и обсудить условия! [#7436767#]

Актуальные предложения

4 815 000 руб./мес. Помещение 521 м2, 1/24 этаж, Шеногина, д. 2
Позвоните мне