Все строящиеся дома и готовые новостройки
Москвы и Московской области
Москва и МО

Помещение 605 м2, 1/2 этаж,
Лесная, д. 7

90 736 500 руб.

150 000 руб./м²
  • Московская обл, Поварово дп, Лесная ул, д. 7

Основные характеристики

  • Этаж 1 этаж 2-этажного дома
  • Общая площадь 604.91 м²
  • Назначение помещения складское помещение

Дополнительная информация

  • Источник напрямую
  • Ремонт да
  • Наличие интернета да
  • Высота потолков, м 8

Инфраструктура

Описание

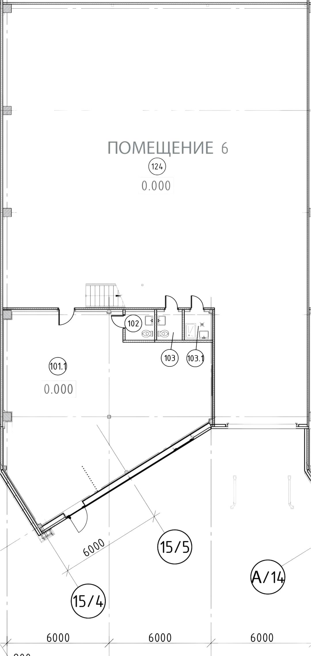
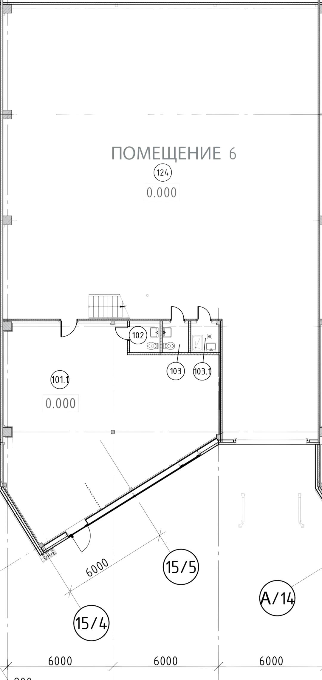
Продается новое производственно-складское помещение по Дмитровскому шоссе - ICPARK КЛЮЧ. Назначение: под производство и склад Продажа осуществляется напрямую от собственника парка, что гарантирует отсутствие каких-либо комиссий и скрытых платежей! Объект расположен в северном направлении с выездом на Дмитровское шоссе (4 км). Расстояние от МКАД - 30 км. Координаты: 56.148996, 37.449949 Формат Point. Блок А, Бокс 6. Планировочное решение включает в себя пространство для производства, склад или логистику 356,85 кв.м, а также офисную часть 120,60 кв.м. Наличие мезонина. ОСНОВНЫЕ ХАРАКТЕРИСТИКИ: - Класс: A - Температура: Сухой склад - Автоматическая спринклерная система пожаротушения - Высота: 8 м - Нагрузка на пол: 5 т/кв.м - Высококачественные бетонные полы с антипылевым покрытием и упрочняющим слоем - Сетка колонн: 12x24 - Ворота: докового типа и на нулевой отметке КОММУНИКАЦИИ: - Электричество: 25 кВт (возможно увеличение мощности) - Вентиляция: приточно-вытяжная - Водоснабжение, канализация - Индивидуальные приборы учета ИНФРАСТРУКТУРА: - Парковки для транспорта: для грузовых авто — 2 места, для легкового авто — 4 места - Доступ к производственно-складским помещениям 24/7 - Охраняемая территория - Видеонаблюдение - Скоростной интернет и телефония ДОПОЛНИТЕЛЬНО: - Собственная профессиональная управляющая компания - Клининг - Консьерж-сервис - Мобильное приложение - Маркетплейс услуг - Кафе на территории - Зоны отдыха и спортивные площадки Готовы предоставить подробную информацию и организовать просмотр! [#7477761#]

Актуальные предложения

90 736 500 руб. 150 000 руб./м² Помещение 605 м2, 1/2 этаж, Лесная, д. 7
Позвоните мне