Все строящиеся дома и готовые новостройки
Москвы и Московской области
Москва и МО

Помещение 545 м2, 1/2 этаж,
Луговая, д. 1

817 050 руб./мес.

  • Московская обл, Слащево д, Луговая ул, д. 1

Основные характеристики

  • Этаж 1 этаж 2-этажного дома
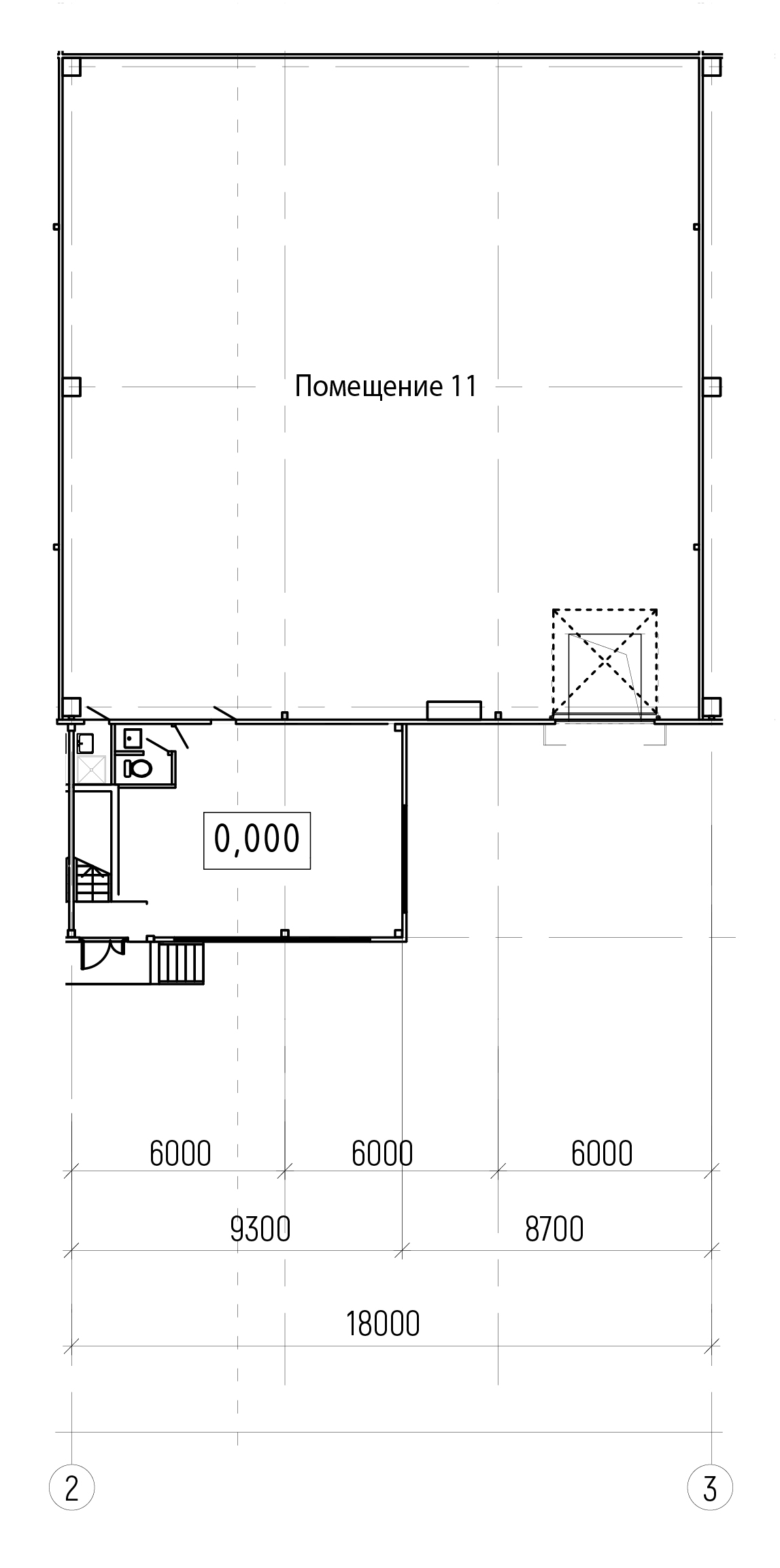
  • Общая площадь 544.7 м²
  • Назначение помещения складское помещение

Дополнительная информация

  • Источник напрямую
  • Ремонт да
  • Наличие интернета да
  • Высота потолков, м 8

Инфраструктура

Описание

Сдается в аренду готовое к заезду производственно-складское помещение вблизи МКАД в промышленном парке INDUSTRIAL CITY -ICPARK Сынково-2. Планировочное решение включает в себя пространство для производства, склад или логистику 434,10 кв.м, а также офисную часть 110,60 кв.м. Аренда напрямую от собственника INDUSTRIAL CITY, что гарантирует отсутствие каких-либо комиссий и скрытых платежей! Формат Base. Блок В, Бокс 21. Срок аренды от 3 лет. Включено в ставку: эксплуатационные расходы (OPEX) Объект расположен в южном направлении, выездом на Симферопольское шоссе (М-2). Расстояние от МКАД - 30 км. Координаты: 55.336677, 37.597621 ОСНОВНЫЕ ХАРАКТЕРИСТИКИ: - Класс: A - Температура: Сухой склад - Автоматическая спринклерная система пожаротушения - Высота: 8 м - Нагрузка на пол: 5 т/кв.м - Высококачественные бетонные полы с антипылевым покрытием и упрочняющим слоем - Сетка колонн: 12x24 - Ворота: докового типа КОММУНИКАЦИИ: - Электричество: 25 кВт (возможно увеличение мощности) - Вентиляция: приточно-вытяжная - Водоснабжение, канализация - Индивидуальные приборы учета ИНФРАСТРУКТУРА: - Парковки для транспорта: для грузовых авто — 1 место, для легкового авто — 3 места - Доступ к производственно-складским помещениям 24/7 - Охраняемая территория - Видеонаблюдение - Скоростной интернет и телефония ДОПОЛНИТЕЛЬНО: - Собственная профессиональная управляющая компания - Клининг - Консьерж-сервис - Мобильное приложение - Маркетплейс услуг - Кафе на территории - Зоны отдыха и спортивные площадки Свяжитесь с нами, и мы ответим на все ваши вопросы об условиях аренды! [#7477805#]

Актуальные предложения

817 050 руб./мес. Помещение 545 м2, 1/2 этаж, Луговая, д. 1
Позвоните мне