Все строящиеся дома и готовые новостройки
Москвы и Московской области
Москва и МО

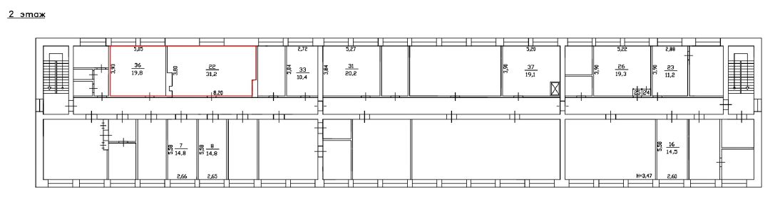
Помещение 51 м2, 2/3 этаж,
Некрасовская улица

2 660 925 руб.

52 175 руб./м²
  • Москва, Некрасовская улица

Основные характеристики

  • Этаж 2 этаж 3-этажного дома
  • Общая площадь 51 м²
  • Назначение помещения помещение свободного назначения

Дополнительная информация

  • Источник через агента

Инфраструктура

Описание

Нежилое помещение площадью 51 кв.м. Адрес: Российская Федерация, Владимирская область, м.р-н Киржачский, г.п. город Киржач, г Киржач, ул Некрасовская, д. 28, помещ. 5. Кадастровый номер: 33:02:010705:552. Номер, тип этажа, на котором расположено помещение, машино-место: Этаж № 2. Кадастровые номера иных объектов недвижимости, в пределах которых расположен объект недвижимости: 33:02:010705:271. Кадастровые номера объектов недвижимости, из которых образован объект недвижимости: 33:02:010107:91. Ограничение прав и обременение объекта недвижимости: не зарегистрировано. Кирпичное здание 1980 года постройки расположено в центре города на 1 ой линии, рядом торговые центры, администрация. Большая проходимость. Планировка помещений кабинетная. Высота потолков - 3,84 м. Основное назначение - офисное помещение. Вход в помещение общий из общей входной группы. Доступ в помещение - пропускная система. Общее состояние помещения - косметический ремонт. В помещении имеются: окна, с/у, канализация/водоотведение, центральное отопление, выделенная электрическая мощность – 1,5 кВт. Парковка - стихийная. Продавец юридическое лицо. Цена указана с учетом НДС. Звоните, оперативно ответим на все ваши вопросы. [#7545869#]

Актуальные предложения

2 660 925 руб. 52 175 руб./м² Помещение 51 м2, 2/3 этаж, Некрасовская улица
Позвоните мне