Все строящиеся дома и готовые новостройки
Москвы и Московской области
Москва и МО

Помещение 105 м2, 2/8 этаж,
Мытищинская 2-я, д. 2

73 290 руб./мес.

  • Москва г, Мытищинская 2-я ул, д. 2

Основные характеристики

  • Этаж 2 этаж 8-этажного дома
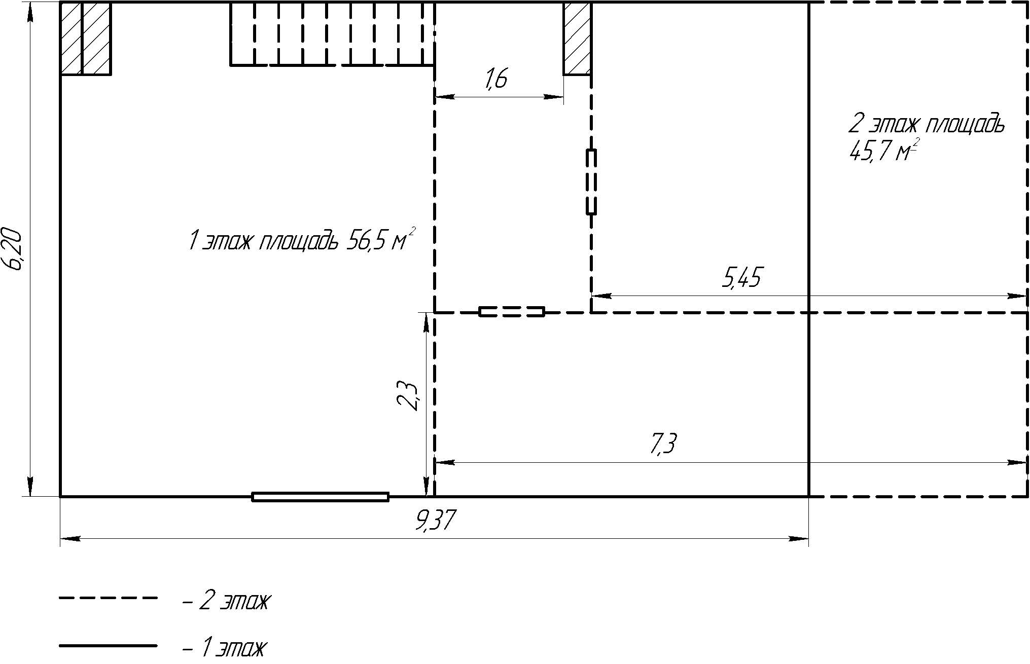
  • Общая площадь 104.7 м²
  • Назначение помещения складское помещение

Дополнительная информация

  • Предоплата 100 %
  • Источник напрямую
  • Залог да
  • Ремонт да
  • Высота потолков, м 5.5

Инфраструктура

Описание

Аренда от собственника! Индивидуальный подход к арендаторам! Предоставляем каникулы! Сдается в аренду под склад или небольшое производство сухое помещение. 4 мин транспортом от станции м. Рижская или м. Алексеевская, 5 мин от ж/д платформы Рижская. Площадь 105 м2, 2-ой этаж. Грузовой и пассажирский лифты. Высота потолков 5,5 м, пол плитка. Помещение двухуровневое. Возможен торг. Стоянка платная. Въезд на территорию для погрузки/разгрузки. Режим работы: будни 8:00 - 21:00. [#7600478#]

Актуальные предложения

73 290 руб./мес. Помещение 105 м2, 2/8 этаж, Мытищинская 2-я, д. 2
Позвоните мне