Все строящиеся дома и готовые новостройки
Москвы и Московской области
Москва и МО

Помещение 283 м2, 3/3 этаж,
Устье С и Ко снт

450 000 руб./мес.

  • Москва, Устье С и Ко снт

Основные характеристики

  • Этаж 3 этаж 3-этажного дома
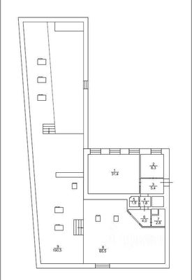
  • Общая площадь 283 м²
  • Назначение помещения коммерческая

Дополнительная информация

  • Предоплата 100 %
  • Источник через агента
  • Наличие парковки да

Инфраструктура

Описание

<strong>ОТ СОБСТВЕННИКА. БЕЗ КОМИССИИ.</strong>

<strong>В аренду ПСН / офис / креативное пространство — 283 кв. м / 450 000 ₽ в мес.</strong>
<strong>Локация: Покровка.</strong>

Отдельный блок. Престижный район, отличная транспортная доступность.

<strong>Общая площадь — 283 кв. м, из них мансарда занимает— 227 кв. м .</strong>
В блоке <strong>14 окон</strong>, много естественного света.

<strong>Планировка:</strong>
— Большой зал <strong>open space — 220 кв. м</strong>
— <strong>3 изолированные зоны / кабинета</strong> (возможность разделения под разные задачи)
— Прихожая / входная зона
— <strong>2 санузла</strong>

<strong>Характеристики:</strong>
— Свежий качественный ремонт
— Высокие потолки
— <strong>4 кондиционера</strong>
— Представительное, светлое пространство

<strong>Подходит под:</strong>
офис, медицинский центр, коворкинг, йога-студию, галерею, креативное пространство, студию, обучающий центр, возможна <strong>субаренда</strong>.

<strong>Налогообложение:</strong> УСНО.
<strong>Юридический адрес:</strong> ИФНС №1.

<strong>Контакт: Евгений Р.</strong>

Актуальные предложения

450 000 руб./мес. Помещение 283 м2, 3/3 этаж, Устье С и Ко снт
Позвоните мне