Все строящиеся дома и готовые новостройки
Москвы и Московской области
Москва и МО

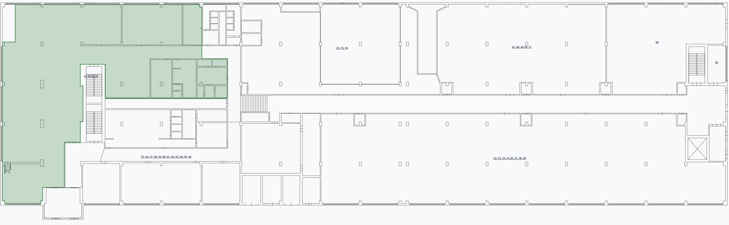
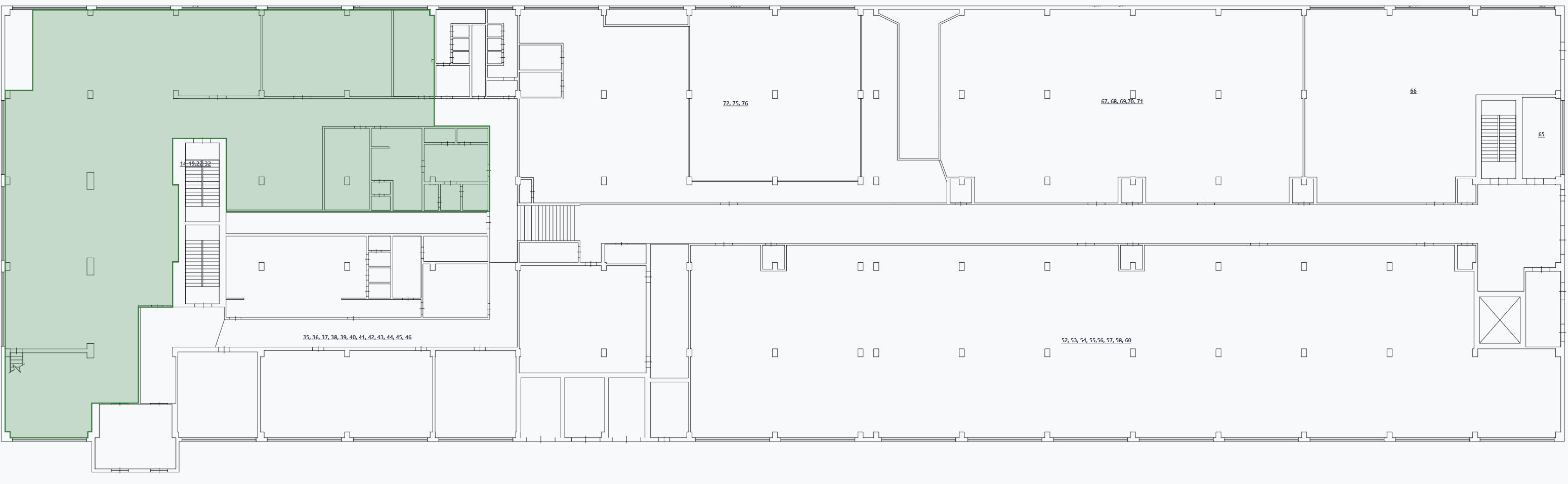
Помещение 615 м2, 1/4 этаж,
Рощинская улица, д.3

565 800 руб./мес.

  • Москва, Рощинская улица, д.3

Основные характеристики

  • Этаж 1 этаж 4-этажного дома
  • Общая площадь 615 м²
  • Назначение помещения складское помещение

Дополнительная информация

  • Предоплата 100 %
  • Источник напрямую
  • Залог да
  • Ремонт да
  • Высота потолков, м 4

Инфраструктура

Описание

Сдам в аренду помещение 615м2 для бизнеса с удобным расположением в Подольске – 7 минут пешком от МЦД ст. Подольск Адрес: г. Подольск, ул. Рощинская, д. 3 Основные характеристики: Высота потолков: 4 метра Размер помещений: 615 м2 Состояние помещений: как на фото. Погрузочная зона: отдельные ворота и доступ для большегрузного транспорта. Инфраструктура и коммуникации: - Парковка: более 100 мест. - Коммуникации: вода, отопление, электричество (мощность 2 МВт). - Интернет и телефон подключаются по запросу. - Безопасность: круглосуточная охрана, система видеонаблюдения, контроль доступа. Транспортная доступность: - 20 км от МКАД (Варшавское шоссе). - 18 км от СКАД (Симферопольское шоссе). - 7 минут пешком до МЦД Подольск. - 5 минут пешком до автобусной остановки. Идеально подходит для: - Легкая промышленность: текстиль, швейное производство, фурнитура, сборка электроники. - Тяжелая промышленность: металлообработка, приборостроение, мебельное производство. - Склады: легкие и средние товары, фулфилмент, упаковка. - Прочее: майнинг-фермы, 3D-печать, сборка электрощитов. - Доступ 24/7 - Удобное расположение: 7 минут от МЦД и 20 км от МКАД. - Современные условия: мощные коммуникации, охрана, доступная парковка. Звоните, все обсуждается! [#8006698#]

Актуальные предложения

565 800 руб./мес. Помещение 615 м2, 1/4 этаж, Рощинская улица, д.3
Позвоните мне