Все строящиеся дома и готовые новостройки
Москвы и Московской области
Москва и МО

Помещение 761 м2, 1/2 этаж,
Устье С и Ко снт

1 268 000 руб./мес.

  • Москва, Устье С и Ко снт

Основные характеристики

  • Этаж 1 этаж 2-этажного дома
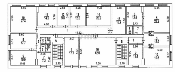
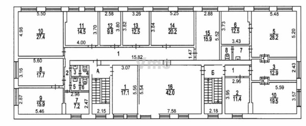
  • Общая площадь 761 м²
  • Назначение помещения коммерческая

Дополнительная информация

  • Предоплата 100 %
  • Источник через агента
  • Залог да
  • Наличие парковки да
  • Высота потолков, м 2.7

Инфраструктура

Описание

Административное здание расположено в пешей доступности от метро «Стахановская», «Окская», «Нижегородская».

Общая площадь здания - 761 кв. м. Этажность - 2 этажа. Двухэтажная временная пристройка - 167,4 кв. м. Земельный участок - 1082 кв. м.

Системы контроля доступа и видеонаблюдения. Системы общеобменной вентиляции и кондиционирования.

Наземный паркинг на 30 м/м. Электрическая мощность 50 кВт. В помещениях выполнен офисный ремонт в светлых тонах, установленные стеклянные перегородки. В здании есть кухня, на каждом этаже есть санузлы. Возможна аренда покомнатно.

УСЛОВИЯ АРЕНДЫ:

Срок аренды: от 11 месяцев.

Здание с отделкой. Дата освобождения - 01.02.2025 г

Ставка арендной платы: 25 000 руб. за кв. мв год

Эксплуатационные расходы и НДС включены в ставку аренды. Обеспечительный платеж: 2 месяца.

Парковка: 10 000 руб. за 1 м/м в месяц (с НДС. ) Коммунальные платежи оплачиваются отдельно.

Внтиляция: Приточно-вытяжная. Кондиционирование: Сплит-системы. Безопасность: Круглосуточный доступ, Круглосуточная охрана, Контроль доступа, Система пожаротушений, Видеонаблюдение. Парковка: Наземная. Описание помещения: Стены кирпичные, перекрытия железобетонные плиты.

Актуальные предложения

1 268 000 руб./мес. Помещение 761 м2, 1/2 этаж, Устье С и Ко снт
Позвоните мне