Все строящиеся дома и готовые новостройки
Москвы и Московской области
Москва и МО

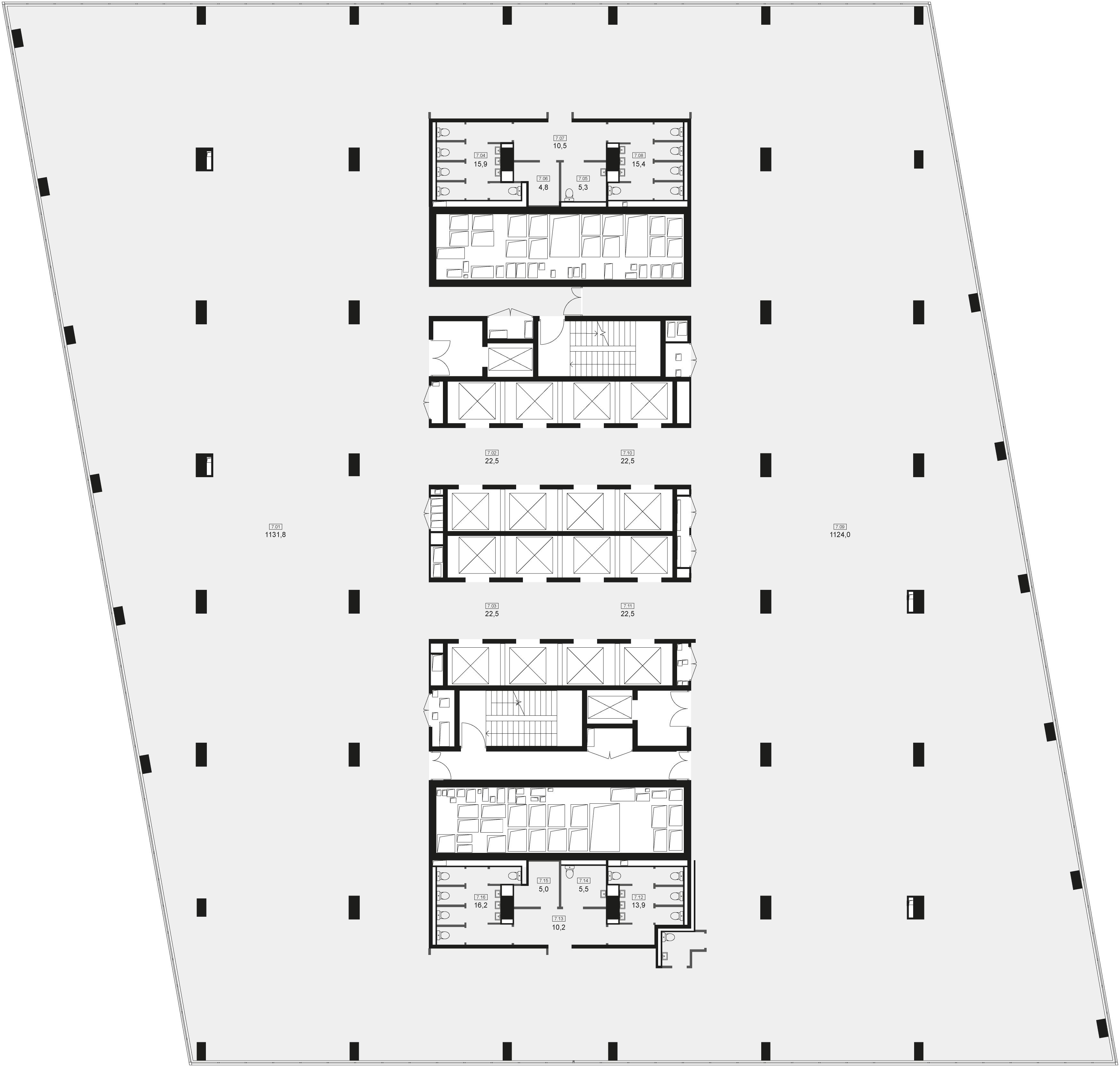
Помещение 12249 м2, 10/24 этаж,
Шеногина улица, д.2/11

52 709 698 руб./мес.

  • Москва, Шеногина улица, д.2/11

Основные характеристики

  • Этаж 10 этаж 24-этажного дома
  • Общая площадь 12248.5 м²
  • Назначение помещения офисное помещение

Дополнительная информация

  • Источник напрямую
  • Ремонт да

Инфраструктура

Описание

Аренда (офисов/ крупных офисных блоков) в новом БЦ Sydney city, всего в 5 минутах от ММДЦ Москва-сити! В аренду предлагаются офисы без отделки напрямую от ФСК БЕЗ КОМИССИИ!! БЦ Sydney city — это новый Бизнес-центр класса "А" всего в 5 минутах от ММДЦ Москва-сити, а с 4 кв. 2026 г., благодаря открытию новой ст. метро Звенигородская (Рублево-Архангельской ветки), всего в 1 станции метро от Москва-сити! БЦ Sydney city расположен в самом центре Большого Сити с прекрасными видовыми характеристиками на Шелепихинскую набережную. Станция метро и МЦК "Шелепиха" находятся в 15-минутной пешеходной доступности, а с 4 кв. 2026 г. выход из новой ст.м. метро "Звенигородская" будет располагаться непосредственно у входа в бизнес-центр. В новом бизнес-центре предлагаются в долгосрочную аренду офисные помещения площадью от 2 156 до 29 250 м2, которые располагаются на 4-16 этажах. В бизнес-центре выполняется высококачественная отделка мест общего пользования, а офисные помещения сдаются в состоянии "под отделку" (shell&core). Арендодатель готов предоставить арендные каникулы на ремонт или выполнить отделку офисной части помещения по типовому дизайн-проекту ФСК с учетом требований арендатора. БЦ Sydney city - это современные архитектура от бюро Kleinewelt architekten, инженерные решения и комфортные офисы с панорамным остеклением «в пол» и открытой эффективной планировкой. Шаг колонн 8,4 х 8,4 м, энерговооруженность - 100 Вт/м2, 5 отдельных лифтовых групп, в т.ч. 17 грузопассажирских лифтов марки Mitsubishi. Офисы на 4, 11, 16 этажах имеют собственную панорамную террасу. Воздухообмен 60 м3/час, кондиционирование по схеме чиллер/фанк-ойл. Автоматическая система спринклерного пожаротушения, АПС, СОУЭ, ДУ. Автоматизация и диспетчеризация базовых инженерных систем и ПБ. Просторная двусветная входная группа с торгово-сервисными помещениями и рестораном на 1 и 2 этажах. Многоуровневый паркинг на 313 м/м, из них 147 м/м доступны в аренду вместе с офисами. Ставка аренды паркинга – по запросу. Доступ к обширной инфраструктуре ЖК Sydney City. Sydney City - новый проект премиум-класса на Шелепихинской набережной, первый жилой квартал в концепции well being в Москве. На территории в 19,3 га ведется строительство 23 жилых корпусов, переменной этажности 8-44 этажей. Квартал обладает развитой собственной социальной и коммерческой инфраструктурой, начиная от престижной школы и д/с и заканчивая фудхоллом и развлекательным центром. Ставка аренды офисов включает НДС, не включает ОРЕХ и коммунальные платежи. Ставка эксплуатационных расходов определяется в диапазоне от 10 500 до 12 500 руб./кв.м/год вкл. НДС. Позвоните, мы оперативно организуем просмотр помещения в комфортное для вас время и ответим на все интересующие вас вопросы! [#8037508#]

Актуальные предложения

52 709 698 руб./мес. Помещение 12249 м2, 10/24 этаж, Шеногина улица, д.2/11
Позвоните мне