Все строящиеся дома и готовые новостройки
Москвы и Московской области
Москва и МО

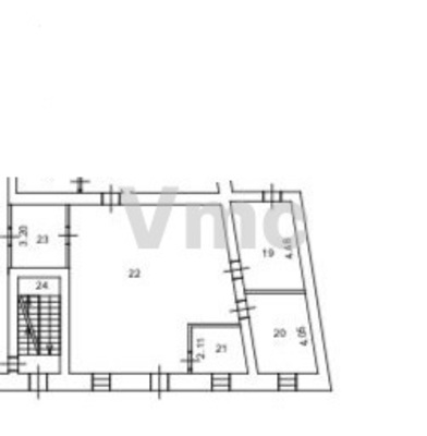
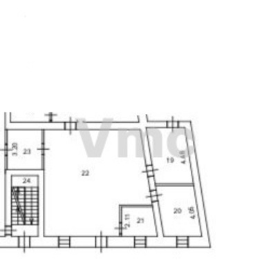
Помещение 80 м2, 1/4 этаж,
Большая Семёновская ул, 43

160 000 руб./мес.

  • Москва, Большая Семёновская ул, 43

Основные характеристики

  • Этаж 1 этаж 4-этажного дома
  • Общая площадь 80 м²
  • Назначение помещения коммерческая

Дополнительная информация

  • Предоплата 100 %
  • Источник через агента
  • Наличие парковки да
  • Высота потолков, м 3.2

Инфраструктура

Описание

Первая линия. Вход с улицы отдельный. вывеска. трафик. доступ 24/7. 80 м. Просторный Зал и 2 отдельных кабинета ,выход на Б. Семёновскую и выход во двор.Здесь был магазин автозапчасти в течении 30 лет .Вывеска присутствует .

Актуальные предложения

160 000 руб./мес. Помещение 80 м2, 1/4 этаж, Большая Семёновская ул, 43
Позвоните мне