Все строящиеся дома и готовые новостройки
Москвы и Московской области
Москва и МО

Дом 118 м2, 6 сот, д.319

17 500 000 руб.

148 810 руб./м²
  • Москва, д.319

Основные характеристики

  • Срок сдачи 2024 г.
  • Комнат 4
  • Общая площадь 117.6 м²

Дополнительная информация

  • Кол-во этажей 1
  • Источник напрямую
  • ФЗ-214 нет
  • Ремонт да

Инфраструктура

Описание

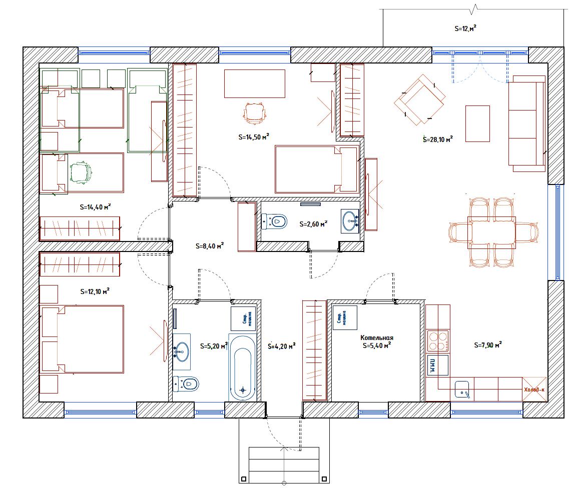
От застройщика! Новый одноэтажный коттедж 117,6 кв.м с отделкой White box на участке 6 соток в КП «Новая Дятловка». Отделка: В доме установлены межкомнатные стены; выполнена разводка всех коммуникаций; натяжной потолок; оборудована котельная под ключ. Вам остается только оформить дизайн! Планировка по проекту: 1 этаж Просторная кухня-гостиная 36 кв.м с окнами на три стороны света и панорамной дверью на крытую террасу 12 кв.м; 3 изолированные комнаты 12/14/14 кв.м, ванная комната, гостевой с/у, бойлерная, гардеробная. Высокие потолки - 3 метра. Коммуникации в доме: Электричество, магистральный газ, автономная канализация, вода – индивидуальная скважина, отопление от газового котла. Земельный участок: 6 соток, ровный правильной формы. Назначение - индивидуальное жилищное строительство - ИЖС, прописка - деревня Дятловка, г.о. Балашиха Вы без проблем сможете прикрепиться к садику, школе, поликлинике. Коттедж построен из высококачественных материалов с соблюдением всех технологий: - Фундамент: Свайный с ростверком (монолитный с армированием) с заглублением 3 м; - Стены: Газобетонный блок Бонолит, толщина внешних стен 400 мм; - Фасад: Штукатурка, покраска, Цоколь утеплен и облицован термопанелями, выполнена отмостка; - Кровля: Четырехскатная из метало-черепицы с установкой снегозадержателей и водосточной системы; - Окна: Металло-пластиковые двухкамерные стеклопакеты с поворотно-откидным механизмом; - Крыльцо с навесом. - Терраса с навесом; - Входная металлическая утепленная дверь; - Забор - металлический штакетник высотой 2м. О поселке: Асфальтированные дороги. Общее освещение. Закрытая территория. В поселке оборудована детско-спортивная площадка с воркаутом и зоной отдыха. Чистый и свежий воздух, удаленность от трасс и многоэтажек, тишина и уединение с природой и при этом оптимальное расстояние до города- всего 3 км от мкр. Железнодорожный и 17 км от МКАД (м. Новокосино). Инфраструктура: Все поблизости: Детский сад, школа, амбулатория, парк, банк, почта, спортивный комплекс с плавательным бассейном в Агрогородке - 10 мин на авто/автобусе. В д. Дятловка расположена остановка школьного автобуса, где утром забирает, а после уроков привозит ребят школьный автобус. В шаговой доступности Вкус Вилл, Пятерочка, пункты Яндекс/Озон/Валдбериз, аптека и тд. ТЦ, рестораны, кафе, сетевые магазины и другая социально-бытовая инфраструктура расположена в городе Железнодорожном - 15 минут на авто. Как добраться: От КП до остановки автобуса 10 минут пешком. Автобус №26 идет до ж/д станции "Черное"- 10 минут, до ж/д станции "Железнодорожная" - 20 минут. Открыт участок автомобильной трассы М12 Москва-Ногинск, легкое метро МЦД-4 (от Апрелевки до Железнодорожного). Вся стоимость в договоре. Одобрение ипотеки и сопровождение сделки - бесплатно. Семейная и IT ипотека - 6%. Индивидуальная рассрочка до 12 месяцев. Специальное предложение: скидка 3% для многодетных семей и участников СВО! Добро пожаловать в Новую Дятловку! [#7518123#]

Актуальные предложения

17 500 000 руб. 148 810 руб./м² Дом 118 м2, 6 сот, д.319
Позвоните мне