Все строящиеся дома и готовые новостройки
Москвы и Московской области
Москва и МО

Дом 379 м2, 912 сот, Парковая улица, д.29

92 884 000 руб.

245 012 руб./м²
  • Москва, Парковая улица, д.29

Основные характеристики

  • Срок сдачи 2027 г.
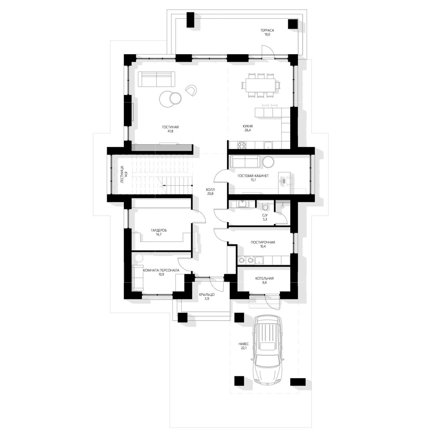
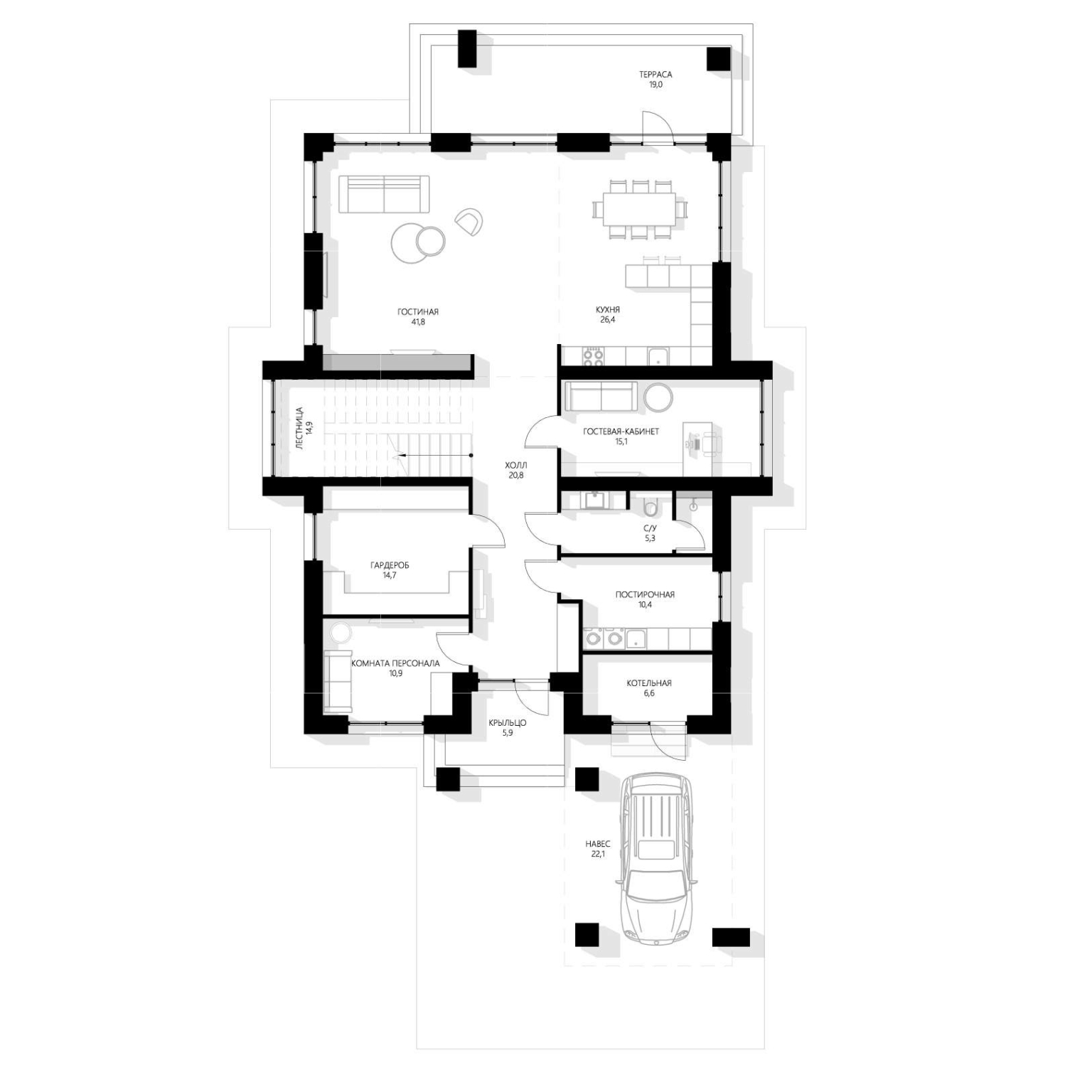
  • Общая площадь 379.1 м²

Дополнительная информация

  • Кол-во этажей 2
  • Источник напрямую
  • ФЗ-214 нет

Инфраструктура

Описание

СТАРТ ПРОДАЖ! Продается коттедж 379,1 м2. Дом расположен на участке площадью 911,94 м2 в коттеджном поселке Сердце Риги в 18 км от МКАД. Срок сдачи: 3 квартал 2027 Философия загородного поселка «Сердце Риги» основана на принципах осознанного потребления и достаточности. Особое внимание уделено гармонии пространства через принципы Васту - древней системы организации среды. Расположение домов, дорог и природных зон учитывает стороны света и энергетические потоки, что наполняет дома естественным светом, поддерживает внутреннюю гармонию и способствует здоровью и благополучию жителей. Поселок также следует ESG-стандартам: установлены зарядные станции для электромобилей, организован раздельный сбор мусора, внедрены системы сбора и использования дождевой воды, фильтрация и ионизация питьевой воды. Безопасность обеспечивается круглосуточной охраной и единой системой контроля доступа. Инфраструктура поселка продумана для полноценной загородной жизни: здесь есть залы для медитации и йоги, площадки для падел-тенниса, библиотека в уютном каминном зале, детские игровые площадки, сад с плодовыми деревьями, собственная круглогодичная теплица и кафе с ароматным кофе и свежей выпечкой. [#7666628#]

Актуальные предложения

92 884 000 руб. 245 012 руб./м² Дом 379 м2, 912 сот, Парковая улица, д.29
Позвоните мне