Все строящиеся дома и готовые новостройки
Москвы и Московской области
Москва и МО

Квартира 3-комн., 78 м2, 10/10 этаж,
Шарикоподшипниковская ул, 40

31 000 000 руб.

398 458 руб./м²
  • Москва, Шарикоподшипниковская ул, 40

Основные характеристики

  • Срок сдачи 1958 г.
  • Этаж 10 этаж 10-этажного дома
  • Комнат 3
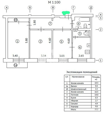
  • Общая площадь 77.8 м²
  • Жилая площадь 49.8 м²
  • Площадь кухни 8.3 м²
  • Балкон / лоджия 1 балкон

Дополнительная информация

  • Ипотека да
  • Апартаменты нет
  • Источник через агента
  • ФЗ-214 нет
  • Ремонт да
  • Тип комнат раздельные
  • Наличие интернета да
  • Вид из окон на улицу
  • Наличие лифта да
  • Высота потолков, м 3

Инфраструктура

Описание

Арт. 119158519 Продается светлая и просторная 3-х комнатная квартира общей площадью 77,8 кв. мКвартира находится на 10 этаже 10-этажного кирпичного дома. Жилая площадь составляет 50 кв. м, Комнаты 19.3+16.5, гостиная 14 кв.м, кухня 8,3 кв. м, коридор 10 кв.м, два санузла 4.9 кв м, и 2.7 кв м, высокие потолки 3,2 метра. Дом после капремонта. В квартире сделан современный качественный ремонт, полностью заменена электрика, сантехника, выровнены стены, полы, натяжной потолок. На полу испанский керамогранит с подогревом, дубовая инженерная термодоска. Кухня оборудована встроенной техникой, в спальне большой встроенный шкаф, в комнатах установлены воздухоочистители и кондиционеры.Отличная локация!!!До метро Дубровка всего 3 минуты пешком. Район предоставляет все необходимое для комфортной жизни: рядом находятся школы, детские сады, клиники, ТЦ Мозаика и магазины. Отличная транспортная доступность позволяет быстро добраться до других районов Москвы, поэтому вам не придется тратить много времени на дорогу.Один собственник, без обременений.

Актуальные предложения

31 000 000 руб. 398 458 руб./м² Квартира 3-комн., 78 м2, 10/10 этаж, Шарикоподшипниковская ул, 40
Позвоните мне