Все строящиеся дома и готовые новостройки
Москвы и Московской области
Москва и МО

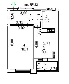
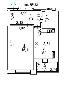
Квартира 1-комн., 40 м2, 5/9 этаж,
К.Цеткин улица, д.176А

3 500 000 руб.

87 500 руб./м²
  • Москва, К.Цеткин улица, д.176А

Основные характеристики

  • Срок сдачи 2023 г.
  • Этаж 5 этаж 9-этажного дома
  • Комнат 1
  • Общая площадь 40 м²
  • Жилая площадь 18.1 м²
  • Площадь кухни 9.4 м²
  • Санузел 1 смежный
  • Балкон / лоджия 1 лоджия

Дополнительная информация

  • Ипотека да
  • Апартаменты нет
  • Источник через агента
  • ФЗ-214 нет
  • Вид из окон на улицу
  • Наличие лифта да
  • Высота потолков, м 2.76

Инфраструктура

Описание

Прекрасная возможность приобрести уютную однокомнатную квартиру в новом жилом комплексе "8 Марта" напрямую от застройщика, без посредников и переплат! Эта квартира — ваш шанс создать идеальное жилище по индивидуальному проекту на 6 этаже современного дома. Квартира площадью 40 кв.м. подарит вам светлое утро благодаря восточным окнам, создающим комфортный климат и открывающим великолепный вид на Николо-Матроновский храм. Просторная комната площадью 18,1 кв.м. и кухня 9,4 кв.м. позволяют комфортно разместить всё необходимое. Без отделки — это ваш шанс воплотить все дизайнерские мечты! Вместительная прихожая, санузел и лоджия, а также впечатляющая высота потолков 2.75 м создают ощущение простора и уюта. Техническое оснащение на высшем уровне: поквартирное отопление, алюминиевые радиаторы и современные лифты от фирмы Otis гарантируют удобство жизни. Жилой комплекс расположен в тихом районе всего в 15 минутах от центра города. Всё необходимое — от детских садов и школы до магазинов и аптек — находится в шаговой доступности. Это идеальное место для комфортной жизни всей семьи. Покупка возможна на выгодных условиях: наличный расчёт, ипотека с использованием материнского капитала, сертификата АЖП или военной ипотеки. Дом введён в эксплуатацию в 3 квартале 2023 года. Все юридические вопросы мы берём на себя! Не упустите шанс стать владельцем квартиры своей мечты. Звоните сейчас! [#7603710#]

Актуальные предложения

3 500 000 руб. 87 500 руб./м² Квартира 1-комн., 40 м2, 5/9 этаж, К.Цеткин улица, д.176А
Позвоните мне