Все строящиеся дома и готовые новостройки
Москвы и Московской области
Москва и МО

Квартира 4-комн., 146 м2, 3/9 этаж,
Гагарина микрорайон, д.6

24 769 000 руб.

170 000 руб./м²
  • Москва, Гагарина микрорайон, д.6

Основные характеристики

  • Срок сдачи 2010 г.
  • Этаж 3 этаж 9-этажного дома
  • Комнат 4
  • Общая площадь 145.7 м²
  • Жилая площадь 78.8 м²
  • Площадь кухни 14 м²
  • Санузел 1

Дополнительная информация

  • Ипотека да
  • Апартаменты нет
  • Источник напрямую
  • ФЗ-214 нет
  • Вид из окон во двор и на улицу
  • Наличие лифта да

Инфраструктура

Описание

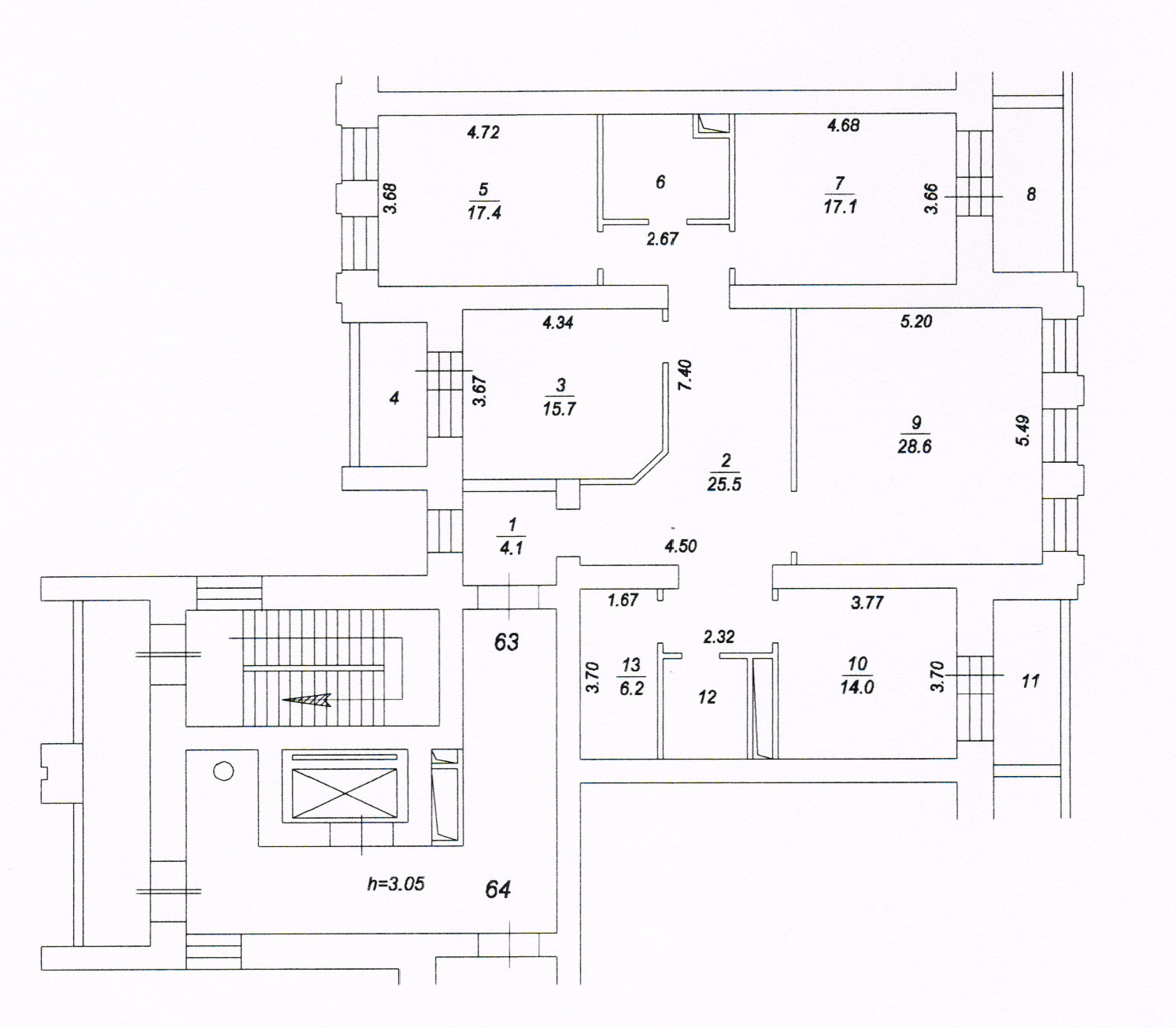
Продам четырехкомнатную просторную светлую квартиру, общей площадью 145,7 м2., хорошая типовая отделка. Квартира находится на 3этаже 10 этажной секции дома, 3 просторных лоджий. Кухня - 14 кв. м., площадь комнат 15,7 кв.м., 17,4 кв.м., 17,1 кв. м. и 28,6 кв.м., площадь коридора 29 кв.м., также имеется гардеробная. В квартире два просторных санузла. Кирпичный дом 2010 года постройки. В доме имеется мусоропровод, грузовой и пассажирский лифт. Во дворе детская площадка, вокруг лесопарковая зона, двор огорожен забором. На этаже всего две квартиры. Свободная продажа, возможна ипотека. [#7613106#]

Актуальные предложения

24 769 000 руб. 170 000 руб./м² Квартира 4-комн., 146 м2, 3/9 этаж, Гагарина микрорайон, д.6
Позвоните мне