Все строящиеся дома и готовые новостройки
Москвы и Московской области
Москва и МО

Квартира 3-комн., 66 м2, 5/5 этаж,
Калинина ул, 116а

3 600 000 руб.

54 628 руб./м²
  • Москва, Калинина ул, 116а

Основные характеристики

  • Этаж 5 этаж 5-этажного дома
  • Комнат 3
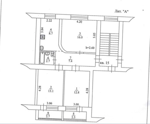
  • Общая площадь 65.9 м²
  • Жилая площадь 41.9 м²
  • Площадь кухни 8.7 м²
  • Балкон / лоджия 1 лоджия

Дополнительная информация

  • Ипотека да
  • Апартаменты нет
  • Источник через агента
  • ФЗ-214 нет
  • Ремонт да
  • Тип комнат раздельные
  • Наличие интернета да
  • Вид из окон во двор

Инфраструктура

Описание

Арт. 133394704 Продается 3-комнатная, просторная квартира на 5 этаже, район Черемушки!!! Все комнаты изолированные. Удобная планировка. Просторная кухня 8,7 кв.м. Две лоджии. Тихий двор, хорошие соседи. Лучший район г. Тихорецка. В шаговой доступности находятся: -гимназия №8;-детский садик;-парк Звездный;-кафе Мама Зоя; -множество продуктовых магазинов; -остановки общественного транспорта.Звоните, записывайтесь на просмотр!!!

Актуальные предложения

3 600 000 руб. 54 628 руб./м² Квартира 3-комн., 66 м2, 5/5 этаж, Калинина ул, 116а
Позвоните мне